2020-12-15 11:03:45
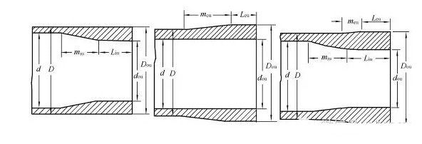
为了增强管体与接头的连接强度,管体两端加厚。常用的加厚形式有内加厚、外加厚、内外加厚三种。根据美国石油学会(API—American Petroleum Institute)的规定,钻杆按长度分为三类:
类,5.486~6.706m(18~22ft);
第二类,8.230~9.144m(27~30ft);
第三类,11.582~13.716m(38~45ft);
其中最常用的钻杆尺寸有88.9(3.5in),114.3(4in),127.0mm(5.5in)三种。

△钻杆加厚形式
钻杆接头外径大于管体外径,在钻井过程中与井壁或套管不断地接触摩擦,产生磨损,为避免接头磨损造成断钻杆、脱扣等钻井事故,必须在钻杆母接头上设有钻杆接头防磨带。

△接头防磨带